Haus L2

Stuttgart - Musberg

2003 - 2004


Ein in den 60er Jahren an das Wohnhaus aus den 30er Jahren angebautes Treppenhaus versperrte Sicht und Zugang zum Garten. Auch entsprach die separate Erschließung der Stockwerke nicht mehr den Anforderungen an ein Einfamilienwohnhaus.


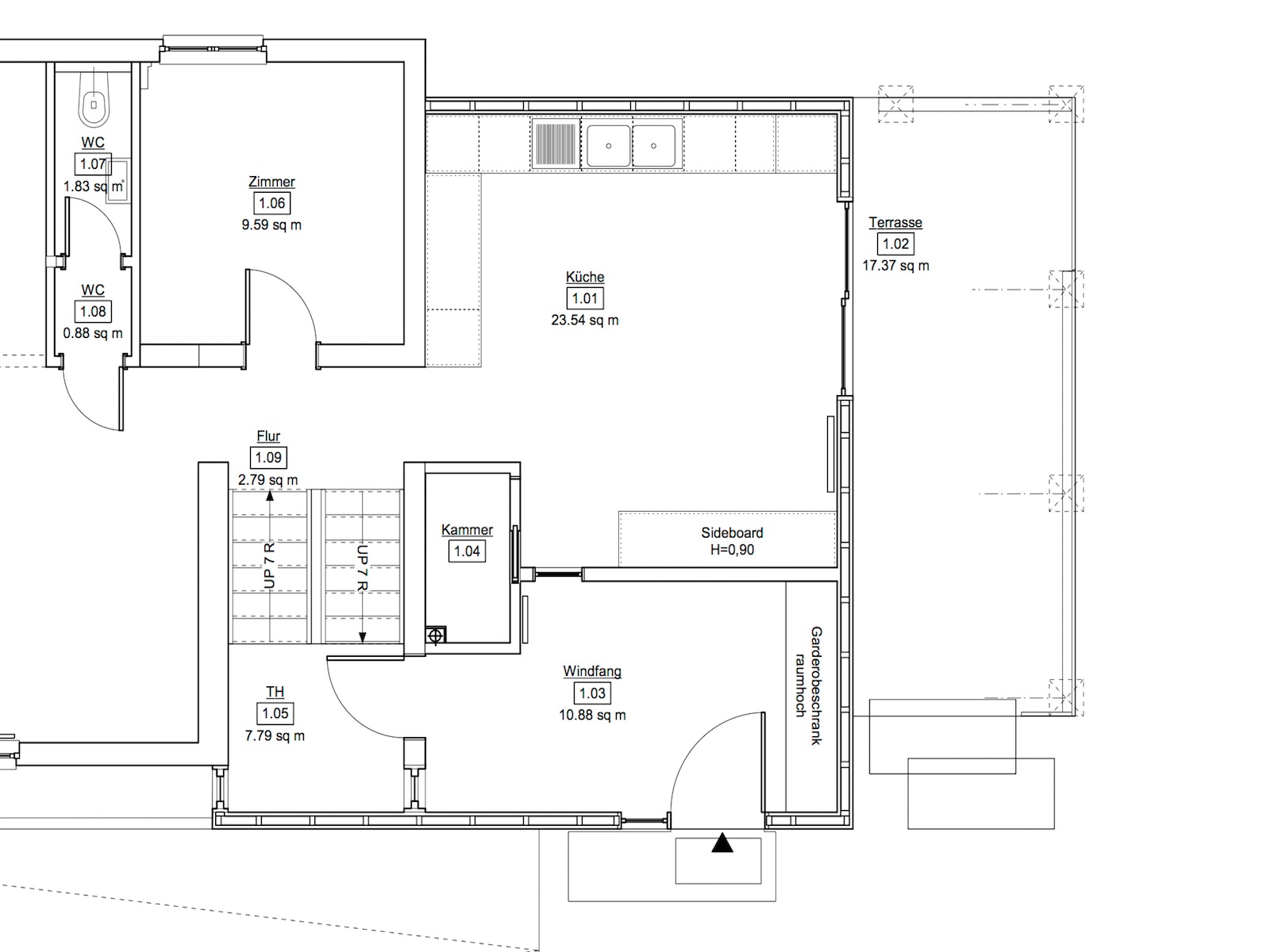
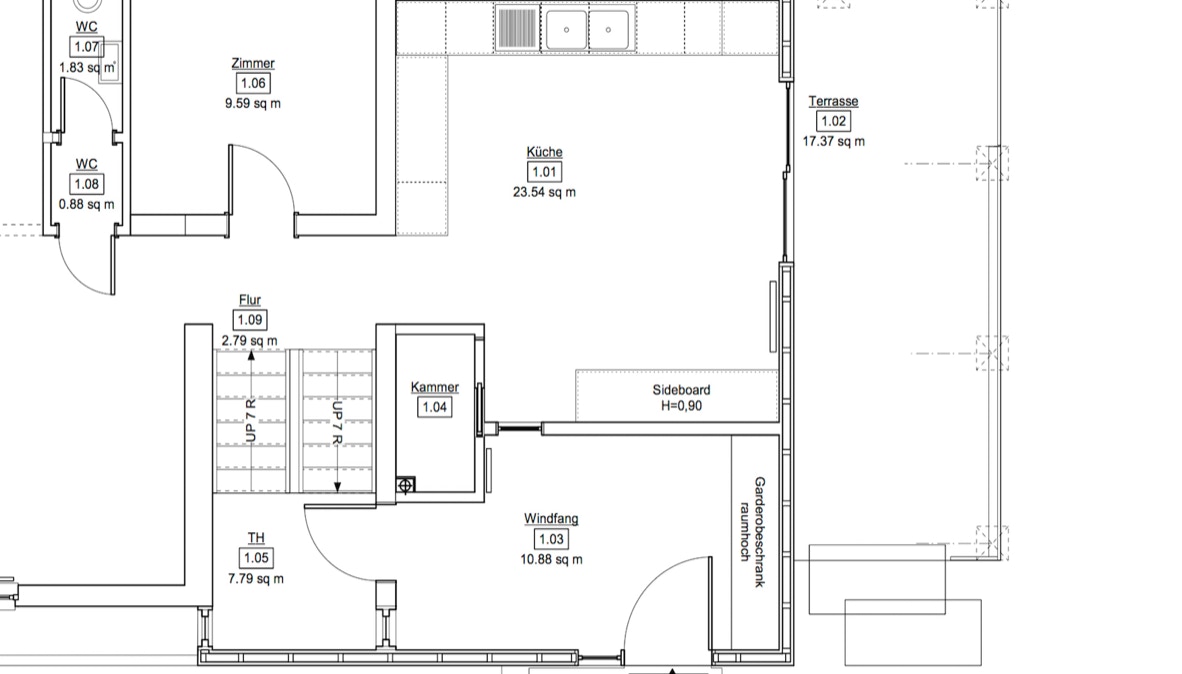
Der Wunsch nach mehr Wohnraum wurde zum Anlass genommen, durch einen eingeschossigen Anbau entlang der Gartenseite den Treppenraum in den Wohnraum zu integrieren und die Gartenfläche erlebbar zu machen. 


Die neue Küche mit einer großen Terrassenfläche wird zum zentralen Gemeinschaftsraum des Hauses. Fensteröffnungen an den Schnittflächen zum Bestand schaffen vielfältige Blickbezüge. 


Der holzverschalte Ständerbau übernimmt Gestaltungselemente der bestehenden Schuppenarchitektur aus der Nachbarschaft und interpretiert sie neu.


Das Haupthaus wurde saniert und der Dachraum zum Wohnraum umgebaut.


Bauherr: privat

Leistungsphasen: 1 bis 8